
TECHNOLOGIE A VYBAVENÍ
DESIGN
Podvozek mobilního domu: K dispozici ve dvou
standardních verzích – s kompletní sadou kol a náprav
nebo jako verze s rovnou podlahou. Rámová konstrukce
je vyrobena z oceli s dřevěnými prvky, chráněnými
proti korozi. Spodní strana domu je chráněna plechem.
Vysoké stropy v celém mobilním domě poskytují
pohodlný prostor ve standardu „All Inclusive“.
ZAŘIZOVÁNÍ DOMU
Mobilní domy all inclusive jsou kompletně zařízené,
dokončené nejkvalitnějšími materiály a vybavené
domácími spotřebiči. Po dodání a připojení je dům
připraven k okamžitému nastěhování.
TOPENÍ A KLIMATIZACE
Elektrické podlahové vytápění v celém domě se ovládá
pomocí mobilní aplikace nebo termostatů
instalovaných v každé místnosti. Topné rohože o
výkonu 80 W/m² jsou speciálně navrženy tak, aby
splňovaly požadavky mobilních domů. Mobilní dům je
navíc vybaven klimatizací o výkonu 3,2 kW s funkcí
vytápění. V létě jednotka chladí interiér a v zimě
bezproblémově spolupracuje s podlahovým vytápěním,
čímž zajišťuje efektivní vytápění celého prostoru.
IZOLACE MOBILNÍCH DOMŮ
V podlaze, střeše a stěnách je použitá minerální vlna
KNAUF o tloušťce 25 cm (střecha 30cm) s propustností λD = 0,035
W/mK. V mobilním domě navíc používáme ve stěnách,
střeše a podlaze izolaci proti vlhkosti, parozábrany a
větrné zábrany. Plastová okna v trojskle (3 tabule) s
montážní hloubkou 80 mm.
DALŠÍ MOŽNOSTI
Váš domov můžeme vylepšit dalšími materiály
dostupnými v našem katalogu. Mezi naše nabídky
patří otočný stůl, který slouží jako řídicí náprava pro
podvozek, zinkování konstrukce, výměna fasády,
myčka nádobí, pračka, dodatečné zasklení a mnoho
dalších možností. Pro zákazníky, kteří si cení
zdokumentované kvality a trvanlivosti svého domu,
nabízíme certifikaci TÜV Rheinland (evropská norma
EN 1647).
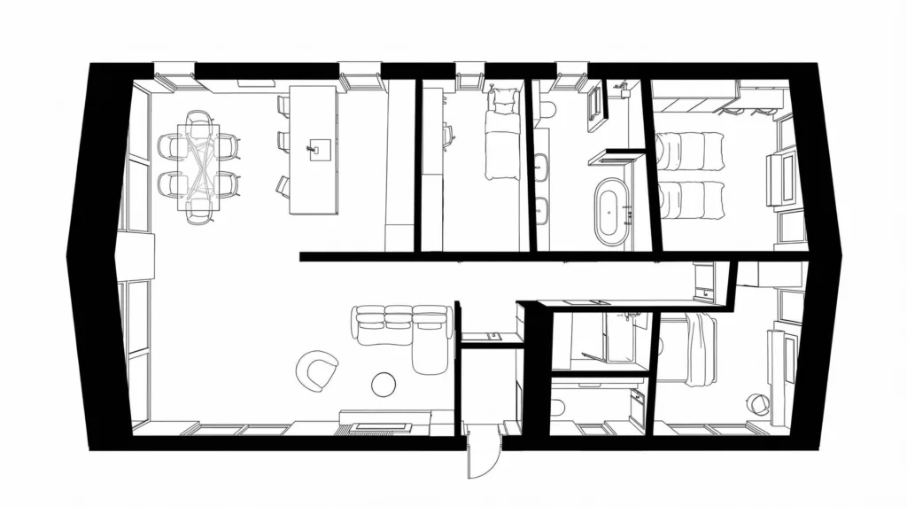
PŮDORYS



























