Cena stavby na klíč
9 584 400 Kč s DPH
Obsah stavby na klíč (klikněte zde)
Cena hrubá stavba
2 795 632 Kč s DPH
Obsah hrubé stavby (klikněte zde)
Dům N6 – luxusní dvoupodlažní vila s moderním designem
Užitková plocha:
239,61 m²
(terasy a balkony nejsou započítány do užitkové plochy)
Celková plocha včetně teras a balkonů: 300,65 m²
Dispozice přízemí – 136,88 m²
Zádveří – 5,93 m²
Spíž – 2,19 m²
Šatna – 2,79 m²
Kuchyně – 15,45 m²
Obývací pokoj + jídelna – 41,13 m²
Schodiště – 4,52 m²
Chodba – 3,35 m²
Pokoj – 14,56 m²
Koupelna – 4,43 m²
Technická místnost – 7,11 m²
Dvougaráž – 35,42 m²
Terasa – 38,17 m² (nezapočítává se do užitkové plochy)
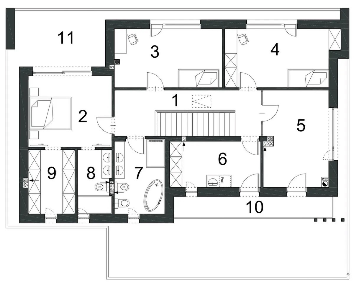
Dispozice patra – 102,73 m²
Chodba – 11,71 m²
Ložnice – 14,23 m²
Pokoj – 15,08 m²
Pokoj – 15,26 m²
Pokoj – 14,91 m²
Prádelna – 10,17 m²
Koupelna – 9,00 m²
Koupelna – 5,19 m²
Šatna – 7,18 m²
Balkon – 10,39 m² (nezapočítává se do užitkové plochy)
Balkon – 12,48 m² (nezapočítává se do užitkové plochy)
Konstrukce a technologie
SIP panely o tloušťce 170 mm – vysoká pevnost, skvělá tepelná izolace a dlouhá životnost.
Montovaná technologie – rychlá, přesná a ekologická výstavba.
Energetická třída A – nízkoenergetický dům s minimálními provozními náklady.
Velkoformátová hliníková posuvná okna pro maximální světlo a propojení se zahradou.
Ekologické materiály a téměř nulový odpad při výrobě.
Hlavní výhody SIP panelů
Rychlá výstavba – hrubá stavba během několika dnů.
Nízké měsíční náklady díky výborné izolaci.
Dlouhá životnost bez náročné údržby.
Ekologický proces výroby – šetrný k životnímu prostředí.
Energetická efektivita
Dům N6 patří mezi nízkoenergetické domy. Díky moderní technologii výstavby nabízí vysoký komfort bydlení, zdravé vnitřní klima a minimální tepelné ztráty.
Upozornění: Obrázky slouží pouze jako vizualizace. Cena je určena pro užitkovou plochu domu. Terasy a balkony nejsou započítány do užitkové plochy. Všechny podrobnosti budou upřesněny v projektové dokumentaci





